6件(会員物件 3件)
-
会員限定
-
1,480万円
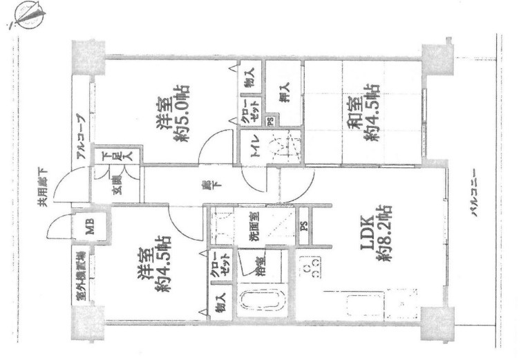
5階 / 50.74㎡ / 3LDK /築18年 /8階建
- エレベーター
- 室内洗濯機置場
- バルコニー
- 都市ガス
- 駐輪場
- TVモニタ付インターホン
追い焚き機能付の浴室です。TVインターホン付きなので、部屋から訪問者の顔を確認できます。1,480万円の物件です。お住まいにいかがでしょうか。バルコニーの広さが9.41㎡の物件です。不動産の購入を検討しているなら、不動産会社をしっかりと選んで下さい。信頼と実績のある不動産会社を選ぶことで、不動産購入を成功させることに繋がります。
-
会員限定
-
会員限定
-
1,380万円
15階 / 52.30㎡ / 3LDK /築35年 /15階建
- ペット相談
- リフォーム済
日が当たる明るい生活が送れるため南西向きはおすすめです♪幅広い方にご好評な1,380万円の物件での新生活♪幅広い方にオススメしたい高ニーズな3LDKの物件です♪内装リフォーム済の物件です♪不動産購入は人生で一度あるかないかの大きな買い物です♪失敗したくないのであれば、経験豊富なプロにお任せください♪メールもしくはお電話からご連絡をお待ちしております(#^^#)
新着情報:ライオンズマンション淀リバーサイドの空室情報ならコチラ!防犯面も生活面も魅力ある中古マンションです!内装リフォーム済みの物件へご入居していただけます!専有面積が58.08㎡でご家族での生活にも十分な広さの物件はこちらです!お客様の住まい探しを、経験豊富な当社スタッフがしっかりとサポートいたします!ご要望やご不明な点などござましたら、メール又はお電話にてご連絡ください(#^^#)